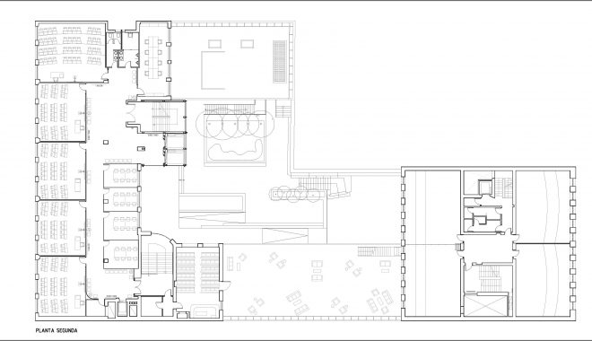
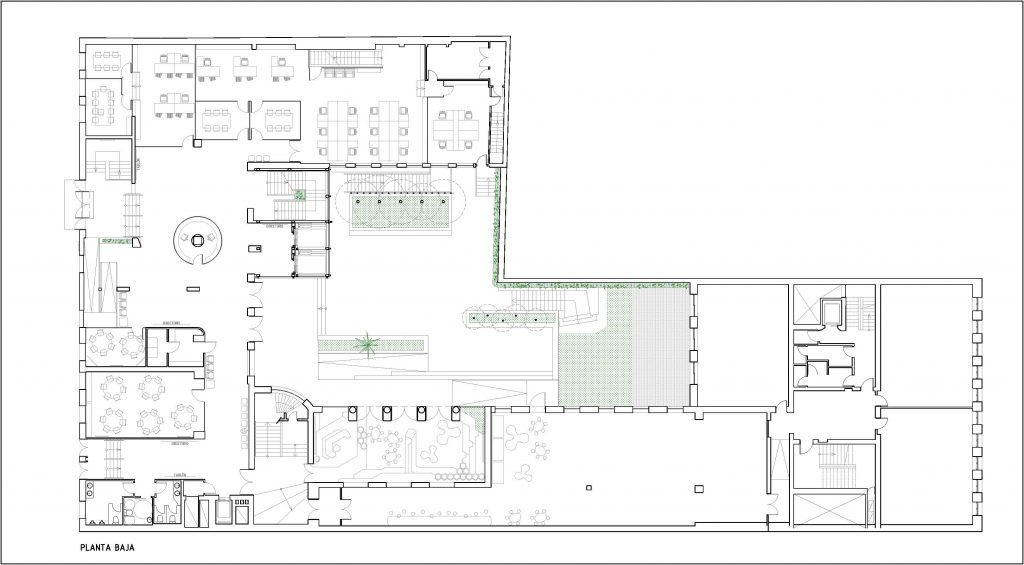
Buró4 junto con el arquitecto Gabriel Verd afrontan en este proyecto la modernización y adecuación específica a la formación de Posgrado, manteniendo el actual uso docente, del edificio que la Fundación Universitaria San Pablo CEU posee en la calle Tutor de Madrid. Dado que el edificio desarrolla con normalidad la actividad docente, con zonas administrativas auxiliares, se ha previsto su intervención en diferentes fases. Se ha planteado la división del alcance de las obras de tal modo que la ejecución de cada una de las fases sea compatible con el funcionamiento del resto del edificio. La fase 1 consiste en la reforma de las plantas baja y primera, mejora de la fachada, del patio y ejecución de un nuevo núcleo de escaleras e instalación de dos ascensores adaptados a personas con movilidad reducida. Se acometen la renovación de acabados e instalaciones interiores, así como la reestructuración de los espacios de usos docente y administrativos existentes. Así mismo se proyecto la renovación completa de la fachada con un nuevo revestimiento consistente en un sistema de fachada ventilada. Se persigue con ello, no solo la renovación de la imagen del edificio, sino a su vez la mejora de las condiciones de eficiencia energética y aislamiento acústico. Así mismo la intervención en el patio interior pretende mejorar la habitabilidad del espacio de esparcimiento y relajación de los usuarios del edificio, introduciendo elementos de jardinería y vegetación.










